MF GAL TROX
Меню каталога

MF GAL TROX

Корпуса фильтров для настенной установки TROX
Стоимость
по запросу
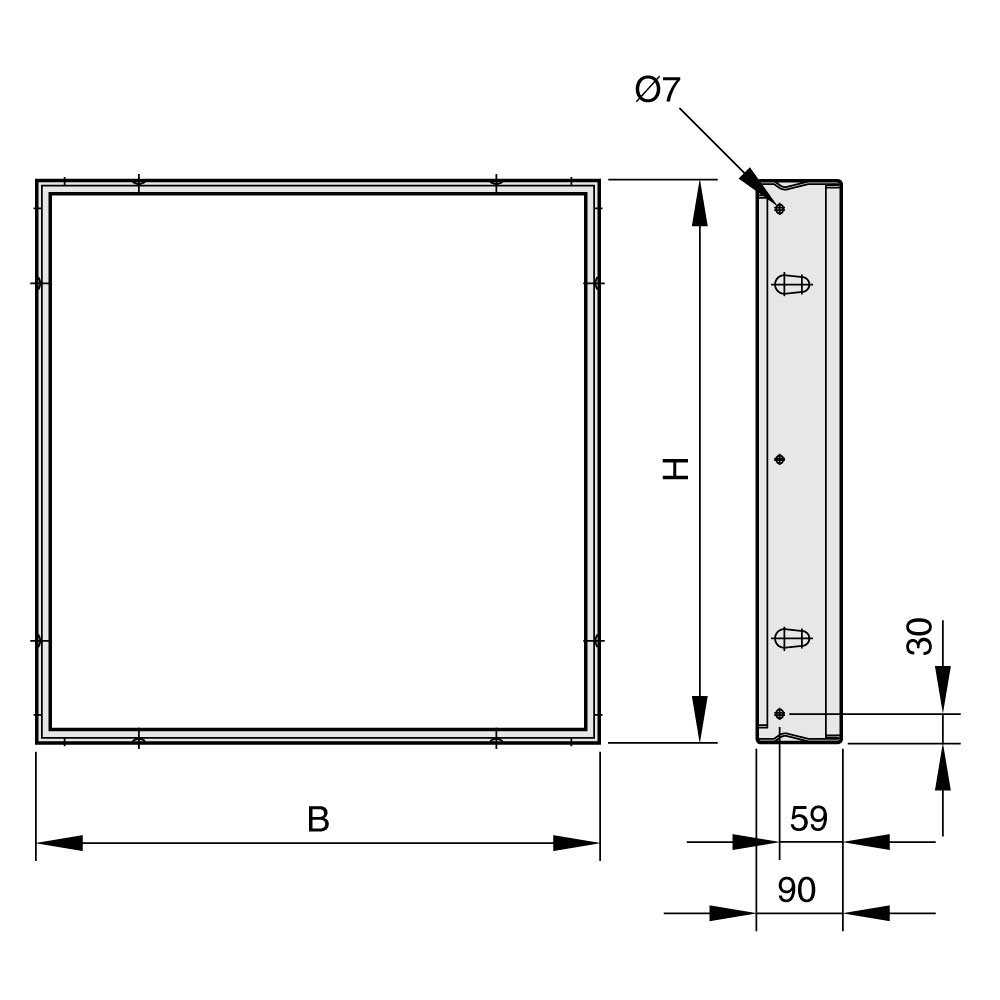
Монтажная рамка типа MF используется в качестве базового элемента для монтажа фильтрующих вставок в приточно-вытяжных установках и системах вентиляции.
Установка мини-плиссированных фильтрующих вставок для отделения мелкодисперсной пыли и взвешенных частиц.
Высокая гибкость благодаря возможности использования модулей различных размеров
Четыре зажимных винта обеспечивают простое обслуживание и надежное уплотнение между монтажной рамой и фильтрующей вставкой Mini Pleat.
Монтажная рамка соответствует гигиеническим требованиям стандарта VDI 6022.
Конструкция из нержавеющей стали.